3965 Via Holgura

San Diego, CA 92130

$ 1,225,000

Price

3

Beds

2.5

Baths

1,413 Sq. Ft.

$867 / Sq. Ft.

59 Days On Market

Favorite

Share

Del Mar Highlands Building

Have You Been Pre-Qualified? Start Now

Listing provided by agent Farryl Moore BRE# 01395425 at Coldwell Banker Realty and Charles Moore at .

Last Updated: 13 days ago

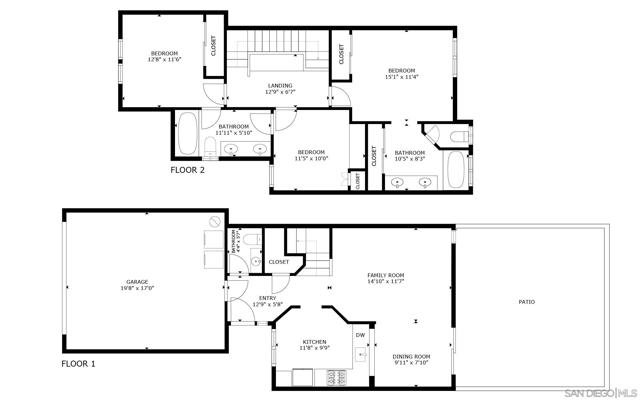
Welcome to this beautifully updated 3-bedroom, 2.5-bath townhome located in the heart of Carmel Valley. This home is walking distance to top ranked elementary, middle, and high schools, and offers easy access to shopping, dining, parks, the library, and beaches. Tucked into a quiet interior location within the sought-after Montemar community, this townhome offers tranquility, abundant natural light and convenience. Inside, tile flooring flows seamlessly through the main living areas, where plantation shutters and abundant natural light create a warm and welcoming atmosphere. The spacious living room centers around a gas fireplace and opens to the dining area, offering an ideal space for both everyday living and entertaining. The adjacent kitchen has been thoughtfully updated with sleek European-style cabinetry, granite countertops, stainless steel appliances, and functional pull-outs that blend style with practicality. Just beyond, sliding glass doors open to a private, hardscaped patio surrounded by a blooming rose garden. This inviting outdoor lounge area is ideal for unwinding, enjoying the sunshine, and taking in the cool coastal breeze. A generous powder room and generous under-stair storage complete the main level. Upstairs, newly installed carpet enhances all three bedrooms. The primary suite boasts vaulted ceilings, dual closets, and backyard views. The en-suite bath offers a dual-sink vanity, tub and shower combo, and private water closet. Down the hall, two additional bedrooms share a well-appointed full bath. One of these bedrooms includes a built-in desk and shelving, ideal for a home office or study space. Residents of Montemar enjoy access to a community pool, spa, and tennis courts, all with low HOA and Mello-Roos fees, plus a new roof installed May 2025. With an unbeatable central location and thoughtful updates throughout, this townhome truly offers the best of Carmel Valley living.

Show More
Property Type Townhouse
Year Built 1995
MLS # 250041002SD
Listing Type Active
Heating Natural Gas, Forced Air
Pool Community
Laundry Electric Dryer Hookup, Gas Dryer Hookup, In Garage
Parking Garage, Garage - Two Door, Garage Door Opener

Payment Calculator

40% Complete (success)
80% Complete (danger)
20% Complete
80% Complete (danger)
60% Complete (warning)
Principal and Interest
Property Taxes
Homeowners' Insurance
HOA Dues
Mortgage Insurance
Image Calculator Icon Customize Calculations | Compare Mortgage Rates

Property Details for: 3965 Via Holgura

Interior Features

Bathroom Information
  • 2 full baths, 1 half bath
Laundry Information
  • Electric Dryer Hookup
  • Gas Dryer Hookup
  • In Garage
Fireplace Information
  • Living Room
Interior Features
  • Recessed Lighting
Heating & Cooling
  • Natural Gas
  • Forced Air

Parking / Garage, Multi-Unit Information, Location Details

Interior Information
  • Recessed Lighting
Parking Information
  • Garage
  • Garage - Two Door
  • Garage Door Opener

Exterior Features

Pool & Spa Information
  • Community
  • Community

Property / Lot Details

Lot Information
Property Information
  • Attached
  • Tax Parcel Number: 3045102010

Nearby Businesses

  • Grocery Stores
  • Drug Stores
  • Coffee Shops
  • Restaurants
  • Health & Medical
  • Fitness & Activity
  • Arts & Entertainment
  • Nightlife & Bars
    Browse all businesses in San Diego, CA, 92130

    Tour This Condo

    SATURDAY

    6

    DEC

    SUNDAY

    7

    DEC

    MONDAY

    8

    DEC

    TUESDAY

    9

    DEC

    WEDNESDAY

    10

    DEC

    THURSDAY

    11

    DEC

    FRIDAY

    12

    DEC

    Schedule A Tour
    Ryan Case, Licensed Realtor & Team Lead

    Ryan Case

    Licensed Realtor & Team Lead

    619-314-5333 Contact Ryan Case
    Listing provided by agent Farryl Moore BRE# 01395425 at Coldwell Banker Realty and Charles Moore at .

    Last Updated: 13 days ago